nieruchomości
Wypełnij formularz i kliknij SZUKAJ poniżej

Numer oferty
 
 
Lokalizacja
Ulica
Cena
Powierzchnia
Liczba pokoi
oferty specjalne

Notes » Zgłoś ofertę » Kalkulator opłat » Wirtualne spacery » O nas » Opinie techniczne » Świadectwo Ener. » Kontakt »

Szczegóły Oferty

obiekt ( wynajem )

908000

Numer:
908000
Miasto:
SZCZECIN, USTOWO
Cena:
11 900 PLN
Cena za mkw:
34 PLN mkw
Powierzchnia:
350.00 m2
Rok budowy:
0

Opis


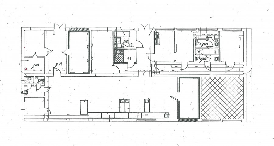
Do wynajęcia budynek/hala magazynowo - biurowa.

Budynek magazynowo - biurowy, jak i idealny pod produkcję hurtową garmażeryjną itp.
Atrakcyjna lokalizacja ( przy DK 13, Rondo Hakena).
Powierzchnia użytkowa 250 m2 + dostawione kontenery łączna powierzchnia użytkowa ok 350 m2.
Powierzchnia działki 915 m2.
W budynku znajduje się dużo pomieszczeń m.in.
- biurowe
- socjalne
- magazynowe
- produkcyjne
- 3 chłodnie
- wc
- szatnia
- kotłownia

Budynek wymaga odświeżenia.

Podana cena wynajmu jest ceną netto, należy doliczyć podatek VAT 23%.
Dodatkowe opłaty prąd, woda, gaz, podatek.

Zapraszam na prezentację.

Mapka nie odzwierciedla faktycznej lokalizacji.

Treść niniejszego ogłoszenia nie stanowi oferty handlowej w rozumieniu Kodeksu Cywilnego. Treść ma charakter informacyjny i zalecamy ich osobistą weryfikację. Kontaktując się z biurem Klient wyraża zgodę na przetwarzanie danych osobowych zgodnie z przepisami ustawy z dnia 29 sierpnia 1997 roku o ochronie danych osobowych / Dz.U.Nr. 133 poz. 883/. Klientowi przysługuje prawo do wglądu do swoich danych osobowych i ich aktualizacji.

 
FOCUS NIERUCHOMOŚCI KATARZYNA CHOROMAŃSKA OROWICZ
Cztery Pory Roku 12 5
71-806 Szczecin
tel.: 881640777
email: biuro@focus.nieruchomosci.pl
Wyślij ofertę na e-mail

Jeśli chcesz dostać tą ofertę w e-mailu,
podaj swój adres.
 
 

Prześlij wiadomość do naszej firmy
Imię i Nazwisko 
Telefon 
E-mail 
Treść zapytania 

Wyrażam zgodę na przetwarzanie moich danych osobowych przez firmę dla celów związanych z działalnością pośrednictwa w obrocie nieruchomościami, jednocześnie potwierdzam, iż zostałem poinformowany o tym, iż będę posiadać dostęp do treści swoich danych do ich edycji lub usunięcia.