nieruchomości
Wypełnij formularz i kliknij SZUKAJ poniżej

Numer oferty
 
 
Lokalizacja
Ulica
Cena
Powierzchnia
Liczba pokoi
oferty specjalne

Notes » Zgłoś ofertę » Kalkulator opłat » Wirtualne spacery » O nas » Opinie techniczne » Świadectwo Ener. » Kontakt »

Szczegóły Oferty

dom blizniak ( sprzedaż )

427372

Numer:
427372
Miasto:
GRZEPNICA
Cena:
759 000 PLN kalkulator
Cena za mkw:
7 228,57 PLN mkw
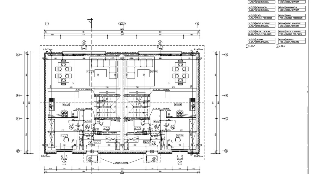
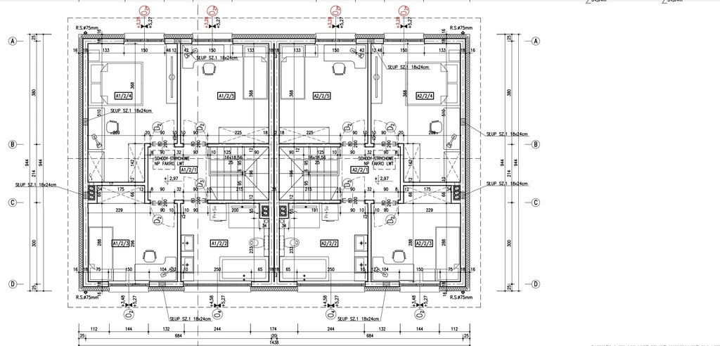
Powierzchnia:
105.00 m2
Pow. działki:
214.00 m2
Liczba pokoi:
5
Rodzaj kuchni:
aneks
Rok budowy:
2024
Droga dojazdowa:
utwardzona

Opis


Nowa inwestycja dwóch bliźniaków położona w Grzepnicy 6km oddalona od centrum Dobrej. Inwestycja składa się z 4 lokali mieszkalnych o powierzchni 105 m 2 i ogródkach od 214m do 280m. Domy oddane w stanie deweloperskim. CO i CW pompy ciepła. Do każdego lokalu po dwa miejsca postojowe. Podjazdy wyłożone polbrukiem. Tren w całości ogrodzony. bliskość natury las państwowy to dodatkowe atuty opisanej nieruchomości.
Standard wykończenia
1) Fundamenty
Płyta fundamentowa betonowa zbrojone + beton C 20/25.
Ściany fundamentowe zabezpieczone przeciwwilgociowo oraz ocieplone
styropianem fundamentowym gr.15cm.
Izolacja termiczna ścian fundamentowych zabezpieczona folią kubełkową.
2) Ściany i stropy
Roboty murowe ściany nośne zewnętrzne murowane z pustaków
SILIKATOWYCH gr. 18cm + styropian gr. 20 cm front i tył budynku,
styropian 18 cm ściany boczne budynku, ściany wewnętrzne z bloczków
gazobetonowych gr.11,5 cm.
Kominy kominy wentylacyjne zgodne z projektem. Wykończenie kominów
ponad dachem siatka klej, tynk oraz montaż kratek wentylacyjnych w
otworach.
Posadzka na gruncie podsypka piaskowa, chudy beton 10cm, płyta
fundamentowa 25 cm, termoizolacja-styropian EPS 100 gr. 20 cm, wylewka
anhydrytowa 5 cm.
Strop nad parterem żelbetowy, monolityczny wylewany gr. 16cm + warstwy
wykończeniowe styropian EPS 100 gr. 5 cm + wylewka anhydrytowa gr.
5cm.
Schody wewnętrzne żelbetowe.
3) Dach
Więźba wykonana w technologii wiązarowej (możliwość wykonania strychu
około 20m2 podłogi, obciążenie użytkowe 0,80 kN/m2)
Membrana paroprzepuszczalna o gramaturze min. 160g/m2.
Pokrycie dachowe wykonane z płaskiej dachówki betonowej firmy BRAAS,
model TEVIVA CISAR.
Rynny kwadratowe GALECO Kwadrat wraz z rurami spustowymi.
Komunikacja dachowa.
Wyłazy dachowe nieocieplane.
4) Stolarka okienna
Stolarka okienna PVC zgodnie z zestawieniem kolor zewnętrzny antracyt,
wewnętrzny biały.
Okna na profilu okiennym GEALAN 9000.
Pakiet trzyszybowy oraz ciepła ramka.
We wszystkich oknach rolety sterowane z przycisków i pilota
Brak parapetów wewnętrznych
5) Stolarka drzwiowa
Drzwi zewnętrzne antywłamaniowe, ocieplone, w kolorze antracytowym,
producent GERDA.
6) Roboty wykończeniowe zewnętrzne
Wykończenie ścian tynk cienkowarstwowy mineralny pomalowany farbą
firmy STO Lotusan G.
Parapety zewnętrzne z blachy powlekanej w kolorze stolarki.
7) Zagospodarowanie działki
Ogrodzenie działki, furtka na ogród.
Wykonanie polbruków przed domem, dwa miejsca postojowe
Ukształtowanie terenu działki (bez trawy)
8) Przyłącza infrastruktury
Przyłącze wodociągowe do domu - liczniki w studni.
Przyłącze energetyczne oraz wprowadzenie kabla do budynku (tablica
elektryczna).
Kanalizacja sanitarna do zbiornika bezodpływowego 12 m3
Kanalizacja deszczowa do zbiornika bezodpływowego 10 m3
9) Instalacje wewnętrzne
Instalacja elektryczna tablica elektryczna, gniazdka, punkty świetlne w
domu, na tarasie, kabel energetyczny wypuszczony na ogród, okablowanie do
sterowania roletami, siła, biały montaż.
Instalacja tv-sat w każdym pokoju oraz kable wypuszczone pod dach,
zamontowana dachówka antenowa.
Instalacja wod. - kan. podejścia do kuchni i łazienek, reduktor ciśnienia
wody.
c. o. - rozprowadzenie instalacji ogrzewanie podłogowe na całości lokalu,
automatyka do sterowania ogrzewaniem podłogowym (7 punktów na lokal)
Pompa ciepłą powietrze - woda typu split (Saunier Duval GeniaAir HA 5-5
OS4.9 kW 230 V + Centrala grzewcza HA 5-5 STB + Regulator SCR 720)
Sterownik do pompy ciepła wraz z czujnikiem pogodowym.
10) Roboty wykończeniowe wewnętrzne
Wylewki anhydrytowe dedykowane pod ogrzewanie podłogowe.
Tynki gipsowe (ściany i sufity).
Zainteresowane osoby zapraszam do kontaktu z maklerem prowadzącym.

 
FOCUS NIERUCHOMOŚCI KATARZYNA CHOROMAŃSKA OROWICZ
Cztery Pory Roku 12 5
71-806 Szczecin
tel.: 881640777
email: biuro@focus.nieruchomosci.pl
Wyślij ofertę na e-mail

Jeśli chcesz dostać tą ofertę w e-mailu,
podaj swój adres.
 
 

Prześlij wiadomość do naszej firmy
Imię i Nazwisko 
Telefon 
E-mail 
Treść zapytania 

Wyrażam zgodę na przetwarzanie moich danych osobowych przez firmę dla celów związanych z działalnością pośrednictwa w obrocie nieruchomościami, jednocześnie potwierdzam, iż zostałem poinformowany o tym, iż będę posiadać dostęp do treści swoich danych do ich edycji lub usunięcia.